Search

Leave a Message

Thank you for your message. I will be in touch with you shortly.

Quintas Terranova 6-12

$860,000
Quintas Terranova 6-12, East Cape,
Quintas Terranova 6-12

Quintas Terranova 6-12

$860,000

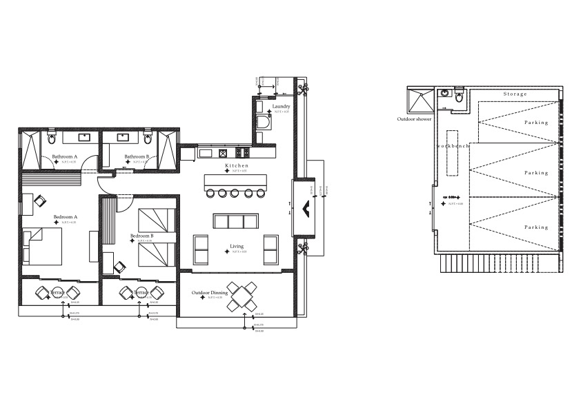
Quintas Terranova Manzana 6-12 is a self-sustainable home on approximately one-third acre home-site on the East Cape of Los Cabos. This quaint ocean view home is designed with the Baja adventurer in mind. The 1,541 square foot main home offers an open great room with kitchen and island, dining and living area, which leads to a patio terrace overlooking the desert garden. Lot 6 - Manzana 12 is a 17,756 square foot (1,649.69 square meter) home-site located in the south-west area of Bahia Terranova II. The principal bedroom offers a desk, private patio, and en-suite bath. The guest bedroom has a desk and closet with a private patio. The 680 square foot garage has space for two SUV's or side-by-side dune buggies, with room for toy storage and an outdoor shower. See Supplement This home is under construction - due for completion fall 2025. The garage has an outdoor shower and will be rough plumbed for a two-piece bathroom. The second level outdoor living space captures vast desert and mountain vistas with blue water ocean views to the southeast and southwest. This upper living space allows outdoor living with space for a grill station and outdoor kitchen area with island, and fire-pit and is covered with a shade pergola where the solar panels are mounted. The house is self-sufficient with solar and battery power, a back-up generator and water storage.

Location
Bahia Terranova II, East Cape, Baja California Sur, Mexico. Ideally located within two and one-half hours from southern California, Arizona, and Texas by plane, and approximately 40 minutes from Los Cabos International Airport - Quintas Terranova is a world apart. The quaint colonial town of San Jose del Cabo is fifteen miles west. Flora Farm and the fishing village of La Playita are twenty minutes away.
Construction bond in place. TEMPO Development are the partners and builders - notable projects include Costarena in Club Campestre and La Reserva in Querencia.
Refer to Documents section for more information.

Propane gas back-up generator: 20KW
12 solar modules, 410 watts Canadian Solar
Growatt inverter
Batteries: Four Pylontech for 20KWh
Water cistern - 10,000 liters - 2,600 gallons

The garage is 680 square feet and offers an interior height of 3 meters or 9 feet 8 inches and a garage door height of 2.7 meters or 8 feet 5 inches - plenty of room for vehicles and toys or, to do a surfboard ding repair or change the oil in the ATV.
Dawn Pier
Dawn Pier Contact

Features & Amenities

Interior

Total Bedrooms 2
Total Bathrooms 2
Full Bathrooms 2
Appliances Refrigerator, Range
Other Interior Features Storage Area

Exterior

Water Source Water Tank Liters
Security Features Gated
Other Exterior Features Terrace, Pergola, Fire Pit, BBQ Area

Area & Lot

Status For Sale
LIVING SPACE 1,989.52 Sq.Ft.
TOTAL AREA 1,989.52 Sq.Ft.
MLS® ID 25-3753
Type Residential
Year Built 2025
Architecture Styles Contemporary

Financial

SALES PRICE $860,000
REAL ESTATE TAXES $824/yr
image

Schedule a Showing

I would love to show you this beautiful property. Please select your preferred date and time below. I will be in touch shortly to confirm your appointment.

Schedule a Showing

I would love to show you this beautiful property. Please select your preferred date and time below. I will be in touch shortly to confirm your appointment.

Thank you for your interest in Quintas Terranova 6-12, East Cape. We are reviewing your request and will be in touch shortly!

Mortgage Calculator

Estimate your monthly mortgage payment, including the principal and interest, property taxes, and HOA. Adjust the values to generate a more accurate rate.

All estimates are provided for informational purposes only. Actual amounts may vary.
$0,000 Your Payment 20 15 65
$0,000 Your Payment

Make Your Move with Dawn

Buying or selling? Dawn is here to help you every step of the way with expert guidance and personal care. Let’s make your move easy.

Let's Connect